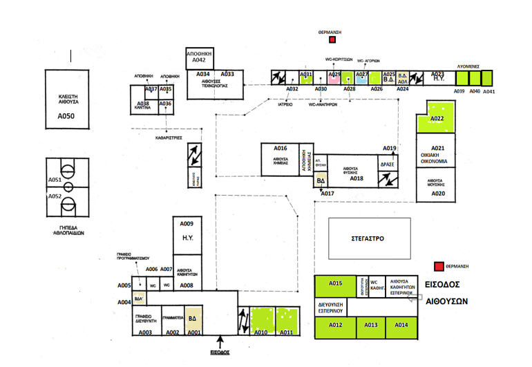
Σχεδιάγραμμα Σχολείου
- Λεπτομέρειες
Πίνακας με κατόψεις κτηρίου
| Θέμα | Αρχείο | Ημερομηνία |
|---|---|---|
| Σχεδιάγραμμα Σχολείου - Ισόγειο | 01/01/2020 | |
| Σχεδιάγραμμα Σχολείου - Όροφος | 01/01/2020 |
Φωτογραφίες με κατόψεις κτηρίου


Εργαλεία προσβασιμότητας
Επιλέξτε τη γλώσσα σας
| Θέμα | Αρχείο | Ημερομηνία |
|---|---|---|
| Σχεδιάγραμμα Σχολείου - Ισόγειο | 01/01/2020 | |
| Σχεδιάγραμμα Σχολείου - Όροφος | 01/01/2020 |

